- Fotos & Karte
Wie erfolgt die Anreise?
- Website
- Beschreibung
- Preise & Verfügbarkeit
- Gut zu wissen
- In der Nähe
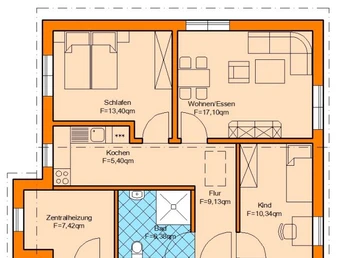
Auf dem großzügigen Areal der Ferienanlage finden Sie Erholung und Natur. Die Ferienanlage am Netzener See liegt direkt im Naturschutzgebiet und bietet 5 moderne und sehr gut ausgestattete Ferienbungalows, von denen 3 barrierefrei sind, sowie 4 Ferienwohnungen, zahlreiche Pensionszimmer, 3 Strandhäuschen und das beliebte Häuschen Seeblick. Auf dem Grundstück können Sie sich in der Klause am See kulinarisch verwöhnen lassen, auch finden Sie bei uns diverse Freizeitmöglichkeiten. Highlights sind der Naturbadestrand und die hauseigenen Steganlagen für Wasserwanderer.
Preise & Verfügbarkeit
Gut zu wissen
Barrierefreiheit
Reisen für Alle
Mehr Informationen zur Barrierefreiheit des Angebotes gibt es unter barrierefrei-brandenburg.de
Anreise & Parken
In der Nähe














